Groen per buurt

Het percentage groen in de buurt is niet echt een goede parameter om te beoordelen of de buurt werkelijk klimaatadaptatief is ingericht. Groen kan een grasveld zijn of een waardevol gebied dat effectief bijdraagt aan klimaatadaptatie. Toch onderzoeken we hier de progressie aan groenoppervlak per buurt omdat dit de enige parameter is die publiekelijk beschikbaar is in de tijd.

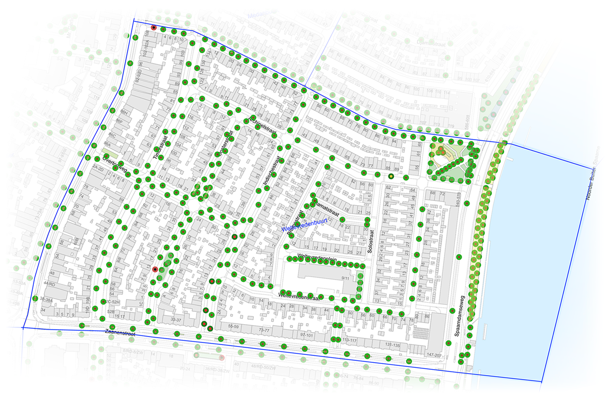
Buurt: Weltevredenbuurt

Wijk: Indische wijk

Totaal oppervlakte (hectare): 17

Jaar Woningen Inwoners Groen Water BKB Groen/woning (hect.)
2020 832 1875 2,3% 14,1% 8,9% 4,8
2021 834 1893 2,3% 14,1% - 4,8
2022 829 1883 2,4% 14,1% - 4,9
2023 830 1878 2,4% 14,1% 10,1% 4,9
2024 832 1889 2,3% 14,1% - 4,8
2025 830 1850 2,3% 14,1% - 4,8
2026 829 1850 2,4% 14,1% - 4,9

Bomen in de buurt

Aantal Per hectare
Aantal bomen 340 20,0
Aantal oude bomen (> 50 jaar) 105 6,2

Beschermde bomen

2019 2025
Totaal Bestaand Verwijderd Niet meer beschermd
9 8 1 0

Als test kijken we naar een norm van van 20 bomen per hectare en 10 oude bomen (> 50 jaar) per hectare. Dat zou een mooi streven kunnen zijn om dat per buurt te proberen te halen.

Leeftijd verdeling

Kroondiameter verdeling

Normen
  • 30% groen in de buurt
  • 75 m2 groen per woning
  • 20 bomen per hectare
  • 10 bomen ouder dan 50 jaar per hectare

Verwijderde bomen die op de lijst beschermde bomen van 2019 stonden

Boom nr. Naam Naam nl Leeftijd Status Kap verg.
19962 Ulmus Glabra Exoniensis Ruwe iep 86 Verwijderd

Kapvergunningen

Boom nr. Naam Naam nl Leeftijd Status Kroondiameter Kap datum Kap reg. nr. Kap verg.
19832 Betula Verrucosa Ruwe berk 47 Bestaand 6 - 9 29-12-2025 0392-2025-0163634 90% afgestorven