Groen per buurt

Het percentage groen in de buurt is niet echt een goede parameter om te beoordelen of de buurt werkelijk klimaatadaptatief is ingericht. Groen kan een grasveld zijn of een waardevol gebied dat effectief bijdraagt aan klimaatadaptatie. Toch onderzoeken we hier de progressie aan groenoppervlak per buurt omdat dit de enige parameter is die publiekelijk beschikbaar is in de tijd.

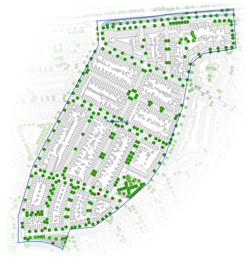
Buurt: Potgieterbuurt

Wijk: Amsterdamsewijk

Totaal oppervlakte (hectare): 12

Jaar Woningen Inwoners Groen Water BKB Groen/woning (hect.)
2020 855 1858 3,2% 0,3% 5,3% 4,5
2021 856 1857 3,2% 0,3% - 4,5
2022 855 1862 3,2% 0,2% - 4,5
2023 856 1878 3,2% 0,2% 5,7% 4,6
2024 857 1883 3,2% 0,2% - 4,5
2025 850 1887 3,3% 0,3% - 4,7
2026 860 1921 3,3% 0,3% - 4,7

Bomen in de buurt

Aantal Per hectare
Aantal bomen 333 27,8
Aantal oude bomen (> 50 jaar) 52 4,3

Beschermde bomen

2019 2025
Totaal Bestaand Verwijderd Niet meer beschermd
3 1 2 0

Als test kijken we naar een norm van van 20 bomen per hectare en 10 oude bomen (> 50 jaar) per hectare. Dat zou een mooi streven kunnen zijn om dat per buurt te proberen te halen.

Leeftijd verdeling

Kroondiameter verdeling

Normen
  • 30% groen in de buurt
  • 75 m2 groen per woning
  • 20 bomen per hectare
  • 10 bomen ouder dan 50 jaar per hectare

Verwijderde bomen die op de lijst beschermde bomen van 2019 stonden

Boom nr. Naam Naam nl Leeftijd Status Kap verg.
44958 Salix Sepulcralis Tristis Gele treurwilg 86 Bestaand stobbe
45895 Ulmus Hollandica Vegeta Hollandse iep 106 Bestaand stobbe