Groen per buurt

Het percentage groen in de buurt is niet echt een goede parameter om te beoordelen of de buurt werkelijk klimaatadaptatief is ingericht. Groen kan een grasveld zijn of een waardevol gebied dat effectief bijdraagt aan klimaatadaptatie. Toch onderzoeken we hier de progressie aan groenoppervlak per buurt omdat dit de enige parameter is die publiekelijk beschikbaar is in de tijd.

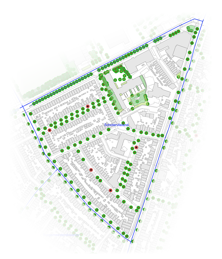
Buurt: Schotervlieland

Wijk: Te Zaanenkwartier

Totaal oppervlakte (hectare): 10

Jaar Woningen Inwoners Groen Water BKB Groen/woning (hect.)
2020 360 1004 3,7% 0,0% 11,1% 10,3
2021 360 992 3,7% 0,0% - 10,3
2022 357 1004 3,7% 0,0% - 10,4
2023 362 993 3,7% 0,0% 11,4% 10,2
2024 362 1000 3,7% 0,0% - 10,2
2025 362 998 3,7% 0,0% - 10,2
2026 363 1003 3,8% 0,0% - 10,4

Bomen in de buurt

Aantal Per hectare
Aantal bomen 206 20,6
Aantal oude bomen (> 50 jaar) 53 5,3

Beschermde bomen

2019 2025
Totaal Bestaand Verwijderd Niet meer beschermd
0 0 0 0

Als test kijken we naar een norm van van 20 bomen per hectare en 10 oude bomen (> 50 jaar) per hectare. Dat zou een mooi streven kunnen zijn om dat per buurt te proberen te halen.

Leeftijd verdeling

Kroondiameter verdeling

Normen
  • 30% groen in de buurt
  • 75 m2 groen per woning
  • 20 bomen per hectare
  • 10 bomen ouder dan 50 jaar per hectare

Kapvergunningen

Boom nr. Naam Naam nl Leeftijd Status Kroondiameter Kap datum Kap reg. nr. Kap verg.
16665 Crataegus Prunifolia Meidoorn 76 Bestaand <3 16-10-2025 0392-2025-0134143 slechte toestand of gevaarzetting
16695 Sorbus Aria Lutescens Meelbes 56 Bestaand 3 - 6 16-10-2025 0392-2025-0134143 slechte toestand of gevaarzetting