Groen per buurt

Het percentage groen in de buurt is niet echt een goede parameter om te beoordelen of de buurt werkelijk klimaatadaptatief is ingericht. Groen kan een grasveld zijn of een waardevol gebied dat effectief bijdraagt aan klimaatadaptatie. Toch onderzoeken we hier de progressie aan groenoppervlak per buurt omdat dit de enige parameter is die publiekelijk beschikbaar is in de tijd.

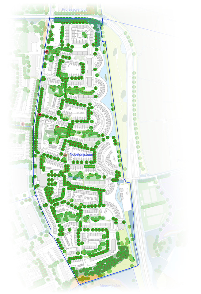
Buurt: Nobelprijsbuurt

Wijk: Meerwijk

Totaal oppervlakte (hectare): 24

Jaar Woningen Inwoners Groen Water BKB Groen/woning (hect.)
2020 963 2443 19,5% 2,7% 13,7% 48,7
2021 963 2407 19,4% 2,7% - 48,4
2022 963 2408 19,4% 2,7% - 48,3
2023 963 2459 19,5% 2,7% 13,9% 48,7
2024 963 2422 19,5% 2,7% - 48,7
2025 963 2432 19,4% 2,8% - 48,5
2026 963 2458 19,4% 2,8% - 48,4

Bomen in de buurt

Aantal Per hectare
Aantal bomen 785 32,7
Aantal oude bomen (> 50 jaar) 249 10,4

Beschermde bomen

2019 2025
Totaal Bestaand Verwijderd Niet meer beschermd
0 0 0 0

Als test kijken we naar een norm van van 20 bomen per hectare en 10 oude bomen (> 50 jaar) per hectare. Dat zou een mooi streven kunnen zijn om dat per buurt te proberen te halen.

Leeftijd verdeling

Kroondiameter verdeling

Normen
  • 30% groen in de buurt
  • 75 m2 groen per woning
  • 20 bomen per hectare
  • 10 bomen ouder dan 50 jaar per hectare

Kapvergunningen

Boom nr. Naam Naam nl Leeftijd Status Kroondiameter Kap datum Kap reg. nr. Kap verg.
697163 Betula Utilis Doorenbos Witte himalayaberk 8 Bestaand <3 29-12-2025 0392-2025-0163646 stobbe (reeds gekapt)
143616 Carpinus Betulus Fastigiata Haagbeuk 31 Bestaand 6 - 9 29-12-2025 0392-2025-0163646 dood
130573 Crataegus Prunifolia Meidoorn 56 Bestaand 3 - 6 16-10-2025 0392-2025-0134056 slechte toestand en gevaarzetting